Carriage on Petticoat
Wake up & smell the mash!
Carriage on Petticoat is a three-story painted brick residence on land that is said to have been owned by the infamous Aaron Burr. This historic home has undergone renovations & no expense was spared. Guests will enjoy the walkability to Downtown Frankfort & many local attractions. Featuring 3 bedrooms & 2 baths, guests are able to experience life like a local with all the modern-day amenities. We are also only a 7.2-mile drive to Castle & Key Distillery.
You will access this home with a code that is generated just for you. You will receive this info 24 hours before your arrival through the Airbnb Platform.
Guests will have full access to this single-family home.
You will need a personal or rented vehicle to access Frankfort and Central KY.
Professionally managed by PURE Property Management, our team is readily available for any guest needs. we have curated an automated experience but are only a message or phone call away if our guests are in need.
Located in Downtown Frankfort, guests are able to walk to Downtown and many local attractions.
STAY
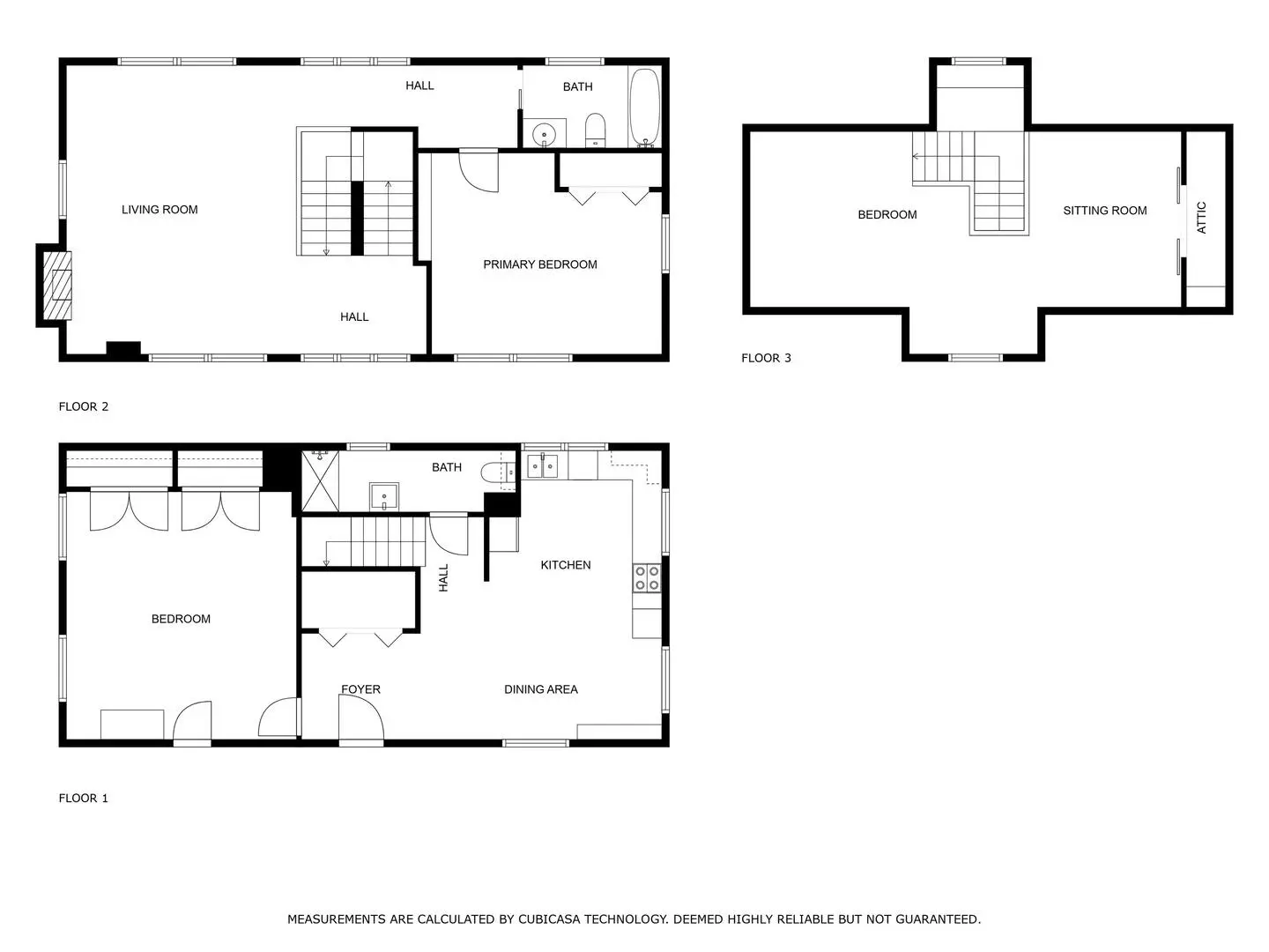
Carriage on Petticoat has plenty of room for your friends & family to gather while visiting historic Frankfort, Kentucky! This charming home has a 3 floor layout, please refer to our floorplan in our photos. Our home has a private living room, newly renovated kitchen, 3 private bedrooms, 2 spacious bathrooms, & a charming backyard. You will have no problem finding somewhere to spend your time together or alone while staying with us.
The three-story painted brick residence sits on land that is said to have been owned by the infamous Aaron Burr. Built in the 1850s, it originally served as a carriage house to the Macklin House that fronts Washington Street. In addition, this important landmark holds the distinction of being one of the only remaining carriage houses in Frankfort
EAT
Our dining table is located in the kitchen and seats 6 guests. You can enjoy cooking in our newly renovated kitchen with granite counters, stainless appliances, and all the utensils needed to prepare your favorite dishes. We have well equipped our kitchen for all of your culinary needs.
We are also within a short walking distance to local Downtown eateries and bars. Reach out to our team for some of our favorite recommendations. We provide a house manual at the property with additional local restaurants in Frankfort and surrounding Central KY.
SLEEP
This charming home has 3 bedrooms with memory foam mattresses. The primary bedroom on the first floor offers a king bed, while our second floor bedroom also offers a king bed. The third floor offers a queen bed and fold out futon. We do provide all linens for beds and a set of towels per guests. The three bedrooms will share the two full bathrooms located in the home, there are no en-suite bathrooms.
If there are any services you need ore recommendations on how to Live Like A Local, our team is readily available to assist with all ways in making your STAY Special!
PARKING
Our property does not have private parking. Guests are easily able to park on the side streets free of charge, request access to a local parking garage, or park at your discretion on the lot near the home. Our clients used to reside at this property and always found access to parking with no issues.
Amenities
Don't have an account? Register
Please enter your username or email address. You will receive a link to create a new password via email.